Svalir ekki með niðurfall

Allt utan efnis

Höfundur
falcon1
vélbúnaðarpervert
Póstar: 938
Skráði sig: Mán 16. Apr 2007 11:30
Reputation: 119
Hafðu samband:
Staða: Ótengdur

Svalir ekki með niðurfall

Pósturaf falcon1 » Lau 03. Maí 2025 17:15

Er einhver fróður um hvernig regluverk er með svalir á blokkum?

Ég bý í 2. hæða fjölbýli á neðri hæð (nýleg blokk) en svalirnar að ofan eru ekki með neitt niðurfall þannig að það flæðir alltaf niður á mínar "svalir" þegar eru rigningar og þegar nágrannanum dettur í hug að þrífa svalirnar sínar. Þá er ég ekki að tala um flæðir á einn afmarkaðan stað heldur stundum er bleyta á öllu mínu svæði þótt mitt svæði sé afmarkað með þremur veggjum og lofti (svalirnar) og frekar djúpt inn.
Lendir það á okkur íbúðaeigendum í þessu fjölbýli að láta laga þetta eða eru þetta handvömm hjá arkitekt/byggingaraðila?



Skjámynd

rostungurinn77
spjallið.is
Póstar: 485
Skráði sig: Fim 30. Nóv 2023 12:01
Reputation: 161
Staða: Ótengdur

Re: Svalir ekki með niðurfall

Pósturaf rostungurinn77 » Lau 03. Maí 2025 17:39

Fæ bara ekki séð að byggingarreglugerð geri neina kröfu um niðurföll.

https://www.byggingarreglugerd.is/leidb ... svalaskyla

Þú ættir að geta flett upp byggingarteikningum á heimasíðu sveitarfélagsins. Þar kann að vera stutt greinargerð um hönnunina.

Teikningarnar eiga að þurfa samþykki byggingarfulltrúa. Þannig að ef þetta á að vera þá klikkaði hönnuðurinn, húsasmiðurinn og byggingarfulltrúinn.

En ég er bara að giska.




Gemini
has spoken...
Póstar: 199
Skráði sig: Mán 02. Mar 2009 00:56
Reputation: 42
Staðsetning: 105
Staða: Ótengdur

Re: Svalir ekki með niðurfall

Pósturaf Gemini » Lau 03. Maí 2025 17:43

Svalirnar teljast sem ytra byrði hússins og eru því á ábyrgð allra í húsinu. Þú verður að óska eftir umfjöllum um þetta á næsta húsfundi. T.d. geturðu talað við stjórn að fá tilboð í að setja niðurföll sem væri þá hægt að kjósa um.

Það er engin að fara að borga þetta fyrir ykkur annar en hússjóður húsfélagsins nema þetta séu mjög nýlega gerðar svalir sem voru ekki gerðar eftir samningum og/eða reglugerðum.

Hvort það sé ólöglegt að hafa ekki niðurföll veit ég ekki. En get sagt þér að svalirnar hjá mér hérna eru ekki með slíkt þó aðrar svalir séu fyrir neðan svo maður myndi giska að á einhverjum tímabili allavega var það löglegt.




Höfundur
falcon1
vélbúnaðarpervert
Póstar: 938
Skráði sig: Mán 16. Apr 2007 11:30
Reputation: 119
Hafðu samband:
Staða: Ótengdur

Re: Svalir ekki með niðurfall

Pósturaf falcon1 » Lau 03. Maí 2025 17:53

Finnst mjög skrítið ef svalir þurfi ekki að hafa niðurföll. En væri svo sem alveg eftir því að ráðamenn gleymdu að hugsa út í slíkt við setningu laga og reglna.



Skjámynd

rapport
Kóngur
Póstar: 8536
Skráði sig: Mán 27. Apr 2009 13:07
Reputation: 1371
Hafðu samband:
Staða: Ótengdur

Re: Svalir ekki með niðurfall

Pósturaf rapport » Lau 03. Maí 2025 18:21

Ef teikningar sýna niðurföll á svölum þá er þetta galli í nýrri eign



Skjámynd

Viktor
Internetsérfræðingur
Póstar: 6833
Skráði sig: Mán 04. Apr 2005 11:01
Reputation: 953
Staðsetning: https://notendur.hi.is/vjh2/
Hafðu samband:
Staða: Ótengdur

Re: Svalir ekki með niðurfall

Pósturaf Viktor » Lau 03. Maí 2025 20:59

Regnvatns- og þerrilagnir skulu þannig hannaðar og frágengnar að ekki sé hætta á að jarðvatn og vatnssöfnun geti valdið skaða á byggingunni eða einstaka hlutum hennar, eða öðrum óþægindum, t.d. fyrir vegfarendur.


https://www.byggingarreglugerd.is/?hlut ... f-contents


I wish I was cool enough to not care how much I care about pretending not to care about things


Macbook Pro 13" M2 16GB 512GB

Ryzen 3600X 2070S 16GB

Skjámynd

rostungurinn77
spjallið.is
Póstar: 485
Skráði sig: Fim 30. Nóv 2023 12:01
Reputation: 161
Staða: Ótengdur

Re: Svalir ekki með niðurfall

Pósturaf rostungurinn77 » Lau 03. Maí 2025 21:34

Viktor skrifaði:
Regnvatns- og þerrilagnir skulu þannig hannaðar og frágengnar að ekki sé hætta á að jarðvatn og vatnssöfnun geti valdið skaða á byggingunni eða einstaka hlutum hennar, eða öðrum óþægindum, t.d. fyrir vegfarendur.


https://www.byggingarreglugerd.is/?hlut ... f-contents


Þýðir þetta að það sé skylda að hafa niðurföll á svölum?

Ég sé það ekki.



Skjámynd

Hrotti
Geek
Póstar: 874
Skráði sig: Mán 22. Mar 2010 20:05
Reputation: 161
Staðsetning: Reykjanesbær
Staða: Ótengdur

Re: Svalir ekki með niðurfall

Pósturaf Hrotti » Sun 04. Maí 2025 10:15

Ef þú kemst í teikningu af frárennslislögnum þá sést um leið hvort að þetta eigi að vera.


Verðlöggur alltaf velkomnar.


Höfundur
falcon1
vélbúnaðarpervert
Póstar: 938
Skráði sig: Mán 16. Apr 2007 11:30
Reputation: 119
Hafðu samband:
Staða: Ótengdur

Re: Svalir ekki með niðurfall

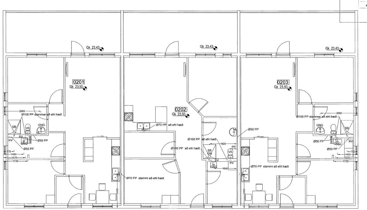
Pósturaf falcon1 » Sun 04. Maí 2025 14:54

Hrotti skrifaði:Ef þú kemst í teikningu af frárennslislögnum þá sést um leið hvort að þetta eigi að vera.

Þetta er það sem ég finn undir fráveitulagnir. Kann ekki að lesa út úr þessu.

Screenshot 2025-05-04 145111.png
Screenshot 2025-05-04 145111.png (236.45 KiB) Skoðað 4932 sinnum



Skjámynd

natti
Tölvutryllir
Póstar: 683
Skráði sig: Fös 10. Jan 2003 09:59
Reputation: 95
Staðsetning: 107
Hafðu samband:
Staða: Ótengdur

Re: Svalir ekki með niðurfall

Pósturaf natti » Sun 04. Maí 2025 17:20

rostungurinn77 skrifaði:
Viktor skrifaði:
Regnvatns- og þerrilagnir skulu þannig hannaðar og frágengnar að ekki sé hætta á að jarðvatn og vatnssöfnun geti valdið skaða á byggingunni eða einstaka hlutum hennar, eða öðrum óþægindum, t.d. fyrir vegfarendur.


https://www.byggingarreglugerd.is/?hlut ... f-contents


Þýðir þetta að það sé skylda að hafa niðurföll á svölum?

Ég sé það ekki.


Ekki beint. Það er skylda að passa upp á að vatnssöfnun eigi sér ekki stað.
Ef þú skoðar sérstaklega eldri hús, þar sem svalir eru bara með t.d. stál-handriði eða álíka (semsagt ekki "vegg"), þá sérðu að þær eru sjaldnast með niðurfalli, því að svalirnar halla örlítið frá húsinu, vatnið ætti því ekki að safnast upp og ætti bara að leka fram af.


Að því sögðu, skv byggingarreglugerð á að taka tillit til svalaniðurfalla á nýbyggingum, sbr:
Utanhúss skal á byggingaruppdráttum m.a. gera grein fyrir frágangi þaka, snjógildra, þakbrúna, þakniðurfalla, frágangi útveggjaklæðninga, glugga, hurða, svala, svala­niðurfalla og stiga og handriða þeirra ásamt öðru sem varðar frágang mannvirkis­ins.
[...]
Ábyrgðarsvið pípulagningarmeistara.
f. tenging þak- og svalaniðurfalla við frárennslislögn,
[...]
Ábyrgðarsvið blikksmíðameistara.
a. Þakrennur og niðurföll bæði frá þökum og svölum,
[...]
6.7.14. gr.
Gólf í veggsvölum skal vera vatnsþétt. Skal gólfið halla frá húsi og skal vatni af því veitt um niðurfall í frárennsliskerfi.

sjá: https://www.reglugerd.is/reglugerdir/eftir-raduneytum/frn/nr/18113

Hafa þarf í huga að hús þurfa að vera í samræmi við þær byggingareglugerðir sem voru til staðar þegar húsið var byggt, atriði sem koma inn seinna þarf ekki að uppfylla nema þegar t.d. það eru miklar endurbætur á húsnæðinu.

Það hjálpar hinsvegar til að benda á þessi atriði á húsfundi, því það sé hagur allra að laga þannig að vatn safnist ekki á svölum og/eða valdi óþægindum fyrir íbúa fyrir neðan, og ein leið sé t.a.m. að koma fyrir niðurfalli sem tengist við frárennslislögn.
Og að það er á ábyrgð eigandans fyrir ofan að tryggja að það sé ekki vatnssöfnun á svölunum hjá þeim, sbr:
https://www.stjornarradid.is/efst-a-baugi/frettir/stok-frett/2014/09/22/Mal-nr.-38-2014/ skrifaði:Húseigendafélagið hafi svarað með því almenna mati að það væri innan verkskyldu eigenda að gæta þess að vatn rynni niður um niðurföll og með vísan í ítargrein þar sem þetta álit hafi einnig komið fram.


Þú talar hinsvegar um að þetta sé nýleg blokk, þá má alveg spyrja hvernig var þetta hannað, og hvernig var tekið á þessum þáttum?

Að lokum, þá myndi ég hiklaust mæla með að skrá þig í Húseigendafélagið.
Ársgjaldið er ekki hátt, og þú getur sent inn einfalda fyrirspurnir slíkt og þessa og jafnvel fengið lögfræðiálit á mjög hagstæðu gjaldi.
Þá fengiru betri upplýsingar um stöðuna þína og næstu skref.


Mkay.


Gemini
has spoken...
Póstar: 199
Skráði sig: Mán 02. Mar 2009 00:56
Reputation: 42
Staðsetning: 105
Staða: Ótengdur

Re: Svalir ekki með niðurfall

Pósturaf Gemini » Sun 04. Maí 2025 17:33

Það var nú einn hérna í blokkinni hjá mér sem kom með álit frá Húseigendafélaginu nýlega. Það mál endaði svo hjá kærunefnd húsamála og endaði gjörsamlega í andstöðu við mat Húseigendafélagsins.



Skjámynd

Hrotti
Geek
Póstar: 874
Skráði sig: Mán 22. Mar 2010 20:05
Reputation: 161
Staðsetning: Reykjanesbær
Staða: Ótengdur

Re: Svalir ekki með niðurfall

Pósturaf Hrotti » Sun 04. Maí 2025 22:26

falcon1 skrifaði:
Hrotti skrifaði:Ef þú kemst í teikningu af frárennslislögnum þá sést um leið hvort að þetta eigi að vera.

Þetta er það sem ég finn undir fráveitulagnir. Kann ekki að lesa út úr þessu.

Screenshot 2025-05-04 145111.png



Það er ekki að sjá á þessari teikningu að það sé reiknað með niðurfalli.


Verðlöggur alltaf velkomnar.

Skjámynd

Viktor
Internetsérfræðingur
Póstar: 6833
Skráði sig: Mán 04. Apr 2005 11:01
Reputation: 953
Staðsetning: https://notendur.hi.is/vjh2/
Hafðu samband:
Staða: Ótengdur

Re: Svalir ekki með niðurfall

Pósturaf Viktor » Mán 05. Maí 2025 09:12

falcon1 skrifaði:
Hrotti skrifaði:Ef þú kemst í teikningu af frárennslislögnum þá sést um leið hvort að þetta eigi að vera.

Þetta er það sem ég finn undir fráveitulagnir. Kann ekki að lesa út úr þessu.

Screenshot 2025-05-04 145111.png


Ø100, Ø70, Ø50 PP eru niðurföllin, svo það eiga ekki að vera niðurföll á svölunum.


I wish I was cool enough to not care how much I care about pretending not to care about things


Macbook Pro 13" M2 16GB 512GB

Ryzen 3600X 2070S 16GB